COLUMN
コラム
【建売住宅の間取り実例vol.16】陽当たりや風通しの期待できる角地のプラン

今回の間取り実例は、南西角地の特徴を生かして居室をレイアウトしたプランです。
解放された道路面に全室が向けられていて、陽当たりや風通しのよさが期待できるだけでなく、パントリーやストレージルームなども備えた、収納重視の方にはオススメな間取りのご紹介です。
建売住宅の購入では、できあがった間取りの中から物件を選ぶことになりますね。
ところが、間取りがご家族の理想に、どこまで近づいているかイメージできず、やっと見つかった物件なのに、購入に踏み出せないともったいないです。
このコラムでは、今までに販売された建売住宅の実例から、その間取りの良いところ、間取り図では気づきにくいポイント、使い勝手が良くなるアイデアなどを紹介します。
間取りの実例をたくさん見ることで、家族構成やこれから叶えたいライフスタイルに、ふさわしいと思える間取りがわかるようになります。
いろいろな建売住宅の実例を見て、ご家族に合う間取りをイメージしたい方や、間取りの使い勝手がよくなるアイデアを知りたい方は、ぜひご覧ください。
目次
間取り実例の物件概要

| ・土地面積:130㎡台 ・建物面積:102.67㎡(1F:55.06㎡ 2F47.61㎡) ・間取りタイプ:4LDK+パントリー+ストレージルーム ・収納率;約12.2% ※壁芯計算 収納面積:約12.5㎡ ・方角 / 土地形状:南西角地 / 整形地 |
間取り実例の特徴


開けた道路面に向けられたすべての部屋
陽当たりのよい道路面にすべての居室が配置されて、とてもよいレイアウトです。
角地の間取りで、部屋の配置が良くなるポイントは階段の位置です。
道路面から階段をなるべく離すことで、2階の居室スペースを陽当たりのよい側に向けることができますよ。
水まわりと階段の上手なゾーニングでよくなった生活動線
洗面室やトイレ、階段が同じエリアにゾーニングされているおかげで、洗濯物をバルコニーへ干しに行く動線が短くなっています。
また、寝室から洗面室で身支度してからダイニングに向かう、朝の生活動線もよいです。
ただし、廊下部分が小さいのでバッティングには注意が必要ですね。
大容量のパントリーはキッチン重視の方におすすめ
パントリーは、2階ストレージルームと同じ1.5帖でうれしいサイズです。
さらに、キッチン背面のスペースは横幅が3.4Mほどあるので、収納にこだわりたい部分ですね。
上部収納のないオープンキッチンですから、背面の収納もキッチンと同じ高さにまとめると、かなり開放感のあるキッチンスペースになるでしょう。
3方向に壁のある主寝室は使いやすい
3方向に壁があると、家具のレイアウトが容易になります。
壁に沿わせて家具を置くことができるので、デッドスペースを少なくできるからです。
洋室8.7帖は、バルコニーへ出入りする窓のほかは腰下部分が壁になっています。
たとえば、部屋の北側に家具をまとめてしまって、南側はフリースペースとして使うことも
可能でしょう。
扉のないストレージルームのほうが使いやすいかもしれない
あえて扉をつけないストレージルームも増えています。
扉の分だけ入り口が狭くなりますし、なかのものを取り出すときに「サッ」と出入りできると楽です。
またストレージルームの窓を開けておくと、2階の風通しもよくなるでしょう。
デッドスペースは見逃さずに活用する
2階トイレ外の壁はデッドスペースです。
それでも、縦45cm×横90cmほどのスペースですから、アイデア次第で便利な収納が作れるでしょう。
上下階の窓が揃っていると見た目がいい
リビングと2階6帖の窓、和室と2階5.3帖の窓はぴったりと位置が揃っています。
同じ形の窓が上下階で揃っていると、外観が整って見えます。
とくに間取り実例は南西角地なので、道路面からの見栄えが良いでしょう。
間取り実例で気になったポイント

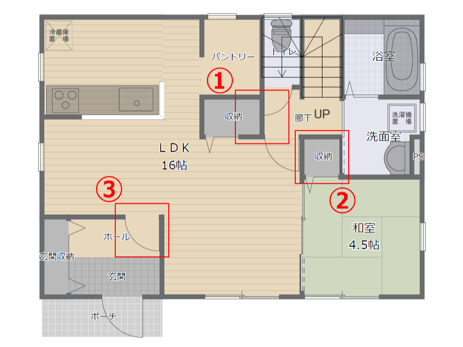
赤枠で囲った3つのポイントについて解説します。
リビングの収納を廊下に分けてあげたかった-①
建売住宅では、洗面室収納の取れていない間取りが多いです。
リビング収納の1/3だけでも、廊下側から出し入れできる収納にしてあると、洗面室やトイレで使う衛生用品などをしまっておける、よい場所になったと思います。
和室の収納はもう少し大きめがよい-②
和室の収納には、季節ものの布団などもしまっておきたいですね。
ただ、間取り実例の和室収納は、布団をしまうには若干幅が足りません。
リビング収納と同じ横幅があるとよかったのですが…
和室の収納の幅は、壁芯で1.365mm以上あると使いやすいです。
玄関からリビングへの入り口は引き戸の方がよい-③
玄関の廊下をなるべく少なくして、居室空間を大きくする間取りも増えています。
ところが間取り実例の玄関ホールは、人が立てるほどの奥行しかありません。
このような場合は、ドアよりも引き戸の方が使い勝手がよいです。
ドアの開閉部スペースを考えなくてよいですし、室内から勢いよくドアを開けたときに、もし人がいたらあぶないですからね。
角地の物件で間取りを選ぶときの注意点

せっかくの角地ですから、居室はすべて道路に面していた方がよいでしょう。陽当たりや風通しが期待できます。
角地は二方向に道路があるぶん、部屋の中が人目につきやすくなります。窓の位置や高さなど、外からの視線が気にならないか確認しましょう。
また、道路が交差する角の土地が斜めに切られている場合があり、建物の形が不整形になることがあります。使いにくそうな部屋がないかも確認してください。
最後にカースペースですが、玄関と近接していない物件が稀にあります。家と車の往復に不満を感じる場合がありますから、車庫の位置も確認しましょう。
仙台市・宮城県エリアで建売住宅を購入するならネクストリンクにご相談ください

「家族に合う家を購入したいけど、間取りのイメージが掴めない・・・」
「気になる間取りがあるけれど、決めていいのか悩むなぁ・・・」
「間取りが、もっと使いやすくなるアイデアを知りたい!」
ネクストリンクでは、ご家族のご要望にふさわしい間取りのご提案や、購入検討中の間取りに悩みや不安のある方の診断、住宅購入を手軽にしたい方の物件探しなど、さまざまなサポートをご提供しています。
また建売住宅の土地のこと、ご予算のことなど、なんでもご相談ください。
株式会社ネクストリンクは、どこよりも土地・建物に強い会社です!
「間取り」と「立地」に強い、建売住宅の元プランナーが物件選びをしっかりサポートいたします。


<こちらの記事も読まれています>
無料で相談できるので、お気軽に活用してみてくださいね。









