COLUMN
コラム
【建売住宅の間取り実例vol.12】広々リビングを実現したLDKの理想形とは

今回の間取り実例は、いろいろな形のリビングのなかでもコンパクト、且つ、空間の広さを目いっぱい使える理想的な形をご紹介します。
リビングは間取りの中でも重視したいお部屋ですから、物件選びの参考になりますよ。
建売住宅の購入では、できあがった間取りの中から物件を選ぶことになりますね。
ところが、間取りがご家族の理想に、どこまで近づいているかイメージできず、やっと見つかった物件なのに、購入に踏み出せないともったいないです。
このコラムでは、今までに販売された建売住宅の実例から、その間取りの良いところ、間取り図では気づきにくいポイント、使い勝手が良くなるアイデアなどを紹介します。
間取りの実例をたくさん見ることで、家族構成やこれから叶えたいライフスタイルに、ふさわしいと思える間取りがわかるようになります。
いろいろな建売住宅の実例を見て、ご家族に合う間取りをイメージしたい方や、間取りの使い勝手がよくなるアイデアを知りたい方は、ぜひご覧ください。
目次
間取り実例の物件概要


| ・土地面積:240㎡台 ・建物面積:104.33㎡(1F:54.65㎡ 2F49.68㎡) ・間取りタイプ:4LDK+ストレージルーム ・収納率;約9.7% ※壁芯計算 収納面積:約10.2㎡ ・方角 / 土地形状:東道路/ 不整形地(旗竿地) |
間取り実例の特徴


建売住宅で広々リビングを確保できる理想的なLDK
16帖ほどのLDKでは、リビングは6帖ほどが一般的ですが、実例のリビングは8.25帖の広々空間を確保しています。
理由は、キッチンのすぐ横にダイニングがレイアウトされたことです。
室内の動線が省略できた分のスペースを、リビングに充てることができました。
リビングは横幅ワイドなので、家族団らんスペースのほかにもユーティリティーにつかえる空間ができています。
オープンキッチンではないけれどお客様の目線も気にならない
LDKの中央に袖壁があります。
すこし圧迫感があるかもしれませんが、お客様をダイニングやリビングにお通しするときに、キッチンの中まで視線がいきません。
LDK入り口のドアとキッチンの距離感もよい具合と感じます。
居室スペースを確保しながらも余裕を持たせた玄関や廊下
建売住宅では、なるべく居室のスペースを取りたいので、玄関や廊下が狭くなりがちです。
間取り実例では、居室スペースを確保しながら、廊下にも余裕があります。
それを証明するように、ドア同士がぶつかる場所がほとんどありません。
たっぷり入る大きな玄関収納
1間幅のワイドな玄関収納は靴だけでなく、いろいろな小物を収納できます。
大容量の収納があると、玄関にモノがあふれることがないので、すっきりした空間で
お客様をお出迎えできそうです。
玄関近くにあると役に立つ個室の収納
冬物のコートやお子さんの通学の持ち物など、玄関収納だけでは足りないときに、個室の収納が近くにあると重宝します。
1階洋風和室は、横幅のある形なので、玄関周りもカバーしてくれる収納です。
さまざまなメリットがあるインナーバルコニー
「外干しはしたいけれど、家にいないときに天気が悪くなったら大変…」がなくなりますね。
また、窓が建物外周面より奥になるので、周りからの目線が部屋の中に入りにくいこともあります。
4.5帖の広さですから、おうちキャンプも十分楽しめるスペースです。
あるとうれしいストレージルーム
間取り実例のストレージルームは1.5帖のスペースです。
この空間を、できるだけ有効に使いたいですね。
たとえば、廊下から見て正面の壁と左側を、リフォームで稼働棚にします。
天井まで有効に使える大容量の収納にできますよ。
玄関ポーチの空きスペースも上手く利用したい
玄関ポーチの上部は、洋室6帖が跳ねだして屋根代わりになっています。
2階を支える袖壁がL型になっていて、ポーチが雨に濡れにくく、正面からも見えません。
傘やベビーカーなどちょっとしたものを、一時的に置くスペースに使えます。
間取り実例で少し工夫があったらよいと感じたポイント
赤枠で囲った3つのポイントについて解説します。それぞれ手を加えたパターンをご覧ください。


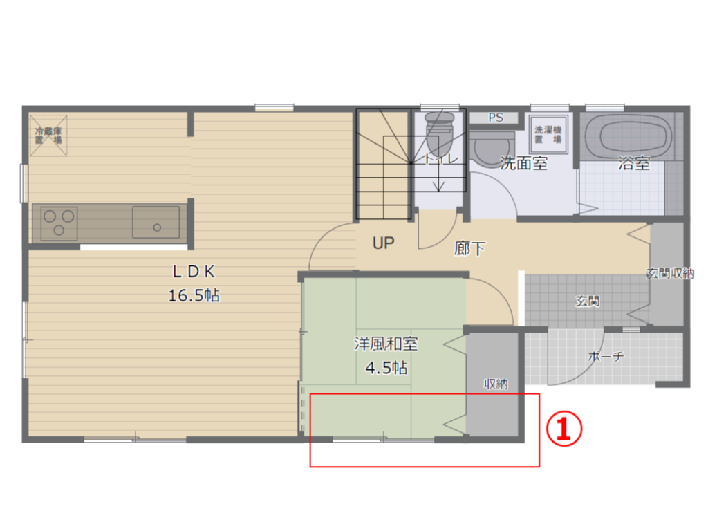
カーテンレールの取付けには注意したい洋風和室の窓-①

洋風和室とは、床は畳ですがそのほかの作りは洋室と一緒で、「洋室の雰囲気をもった和室」のことをいいます。
実例の部屋では収納扉と窓がぶつかるので、取付けできるカーテンレールが限られます。
窓を、左側に寄せてもよかったなと思います。
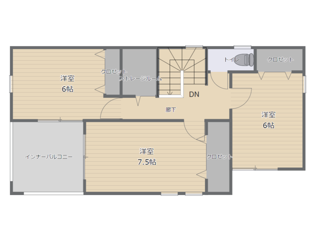
窓の位置を少し変えるだけで使いやすくなる2階の東側洋室-⓶

洋風和室とは反対に、2階東側の洋室では、サッシ窓と収納扉を干渉させないために、扉の幅を狭くしています。
そのため、収納の右奥に使いにくさがでてしまいます。
窓の位置を南側に下げるだけで、収納の幅とおなじ扉がつけられたのですが・・・少し疑問です。
階段部分も工夫すると2階に空きスペースができる-③

階段の、下から2段目までは2階の床にできます。
実例の階段上部を廊下にすると、横幅約90cm・奥行約45cmのスペースができます。
隙間スペースが最初からあると、将来的に収納場所を増やしたいときに助かります。
理想的なリビングを上手に使うなら|家具配置の参考
ダイニングに、幅1800タイプのテーブルと、両脇にチェストを配置しました。
チェストは、パントリーや家族で使う小物の収納として使うのに便利です。
キッチン前のリビングにはお子さんの学習スペースをつくり、テーブルと両サイドに勉強道具用の収納を置いてみました。
お料理をしていてもお子さんの勉強を見てあげられます。


仙台市・宮城県エリアで建売住宅を購入するならネクストリンクにご相談ください

「家族に合う家を購入したいけど、間取りのイメージが掴めない・・・」
「気になる間取りがあるけれど、決めていいのか悩むなぁ・・・」
「間取りが、もっと使いやすくなるアイデアを知りたい!」
ネクストリンクでは、ご家族のご要望にふさわしい間取りのご提案や、購入検討中の間取りに悩みや不安のある方の診断、住宅購入を手軽にしたい方の物件探しなど、さまざまなサポートをご提供しています。
また建売住宅の土地のこと、ご予算のことなど、なんでもご相談ください。
株式会社ネクストリンクは、どこよりも土地・建物に強い会社です!
「間取り」と「立地」に強い、建売住宅の元プランナーが物件選びをしっかりサポートいたします。


<こちらの記事も読まれています>
無料で相談できるので、お気軽に活用してみてくださいね。







