COLUMN
コラム
【建売住宅の間取り実例vol.6】全部は上手くいかない?典型パターンを紹介

今回のプランは、まとまりのよい2階の間取りに比べて、1階がすこし個性的なつくりになった間取りのご紹介です。
「1・2階とも、きれいにまとめるのはむずかしいなぁ」と思わせてくれる間取りについて解説していきます。
建売住宅の購入では、できあがった間取りの中から物件を選ぶことになります。
ところが、やっと見つかった物件なのに、間取りがどこまでご家族の理想に近づいているかイメージできず、購入の決断に迷う方は多いです。
このコラムでは、今までに販売された建売住宅の実例から、その間取りの良いところ、間取り図では気づきにくいポイント、使い勝手を良くなるアイデアなどを紹介します。
間取りの実例をたくさん見ることで、家族構成やこれから叶えたいライフスタイルにふさわしい間取りが判るようになります。
いろいろな建売住宅の実例を見て、ご家族に合う間取りをイメージしたい方や、間取りが便利になるアイデアを知りたい方は、ぜひご覧ください。
目次
間取り実例の物件概要


| ・土地面積:170㎡台 ・建物面積:105.58㎡(1F:57.13㎡ 2F48.85㎡) ・間取りタイプ:4LDK ・収納率;約8.3% ※壁芯計算 収納面積:約8.8㎡ ・方角 / 土地形状:東道路 / 整形地 |
間取り実例の特徴


2階のレイアウトは理想形のひとつ

まず、主寝室と子供部屋が離れていて、階段の登り口から主寝室が最奥に配置されています。
親子で生活リズムが異なるご家庭など、物音が気になりにくいレイアウトです。
つぎに、子供部屋の出入り口とトイレが近接していることです。
特にお子さんが小さいうちは、目の前にあるトイレの方が夜中でも行きやすいです。
最後に、バルコニーへはホールから出入りが可能です。寝室に入ることがないので、就寝中の方を起こすことがありません。
建売住宅の理想的な8帖主寝室
正方形の8帖、畳1畳分の収納が2か所確保されています。
ご夫婦で一つずつ、余裕のある収納スペースとして使えます。
窓は2か所とも腰高窓なので、ドア・収納扉部分を除いて床から1M程度まではすべて壁面です。
家具配置にバリエーション性のある主寝室です。
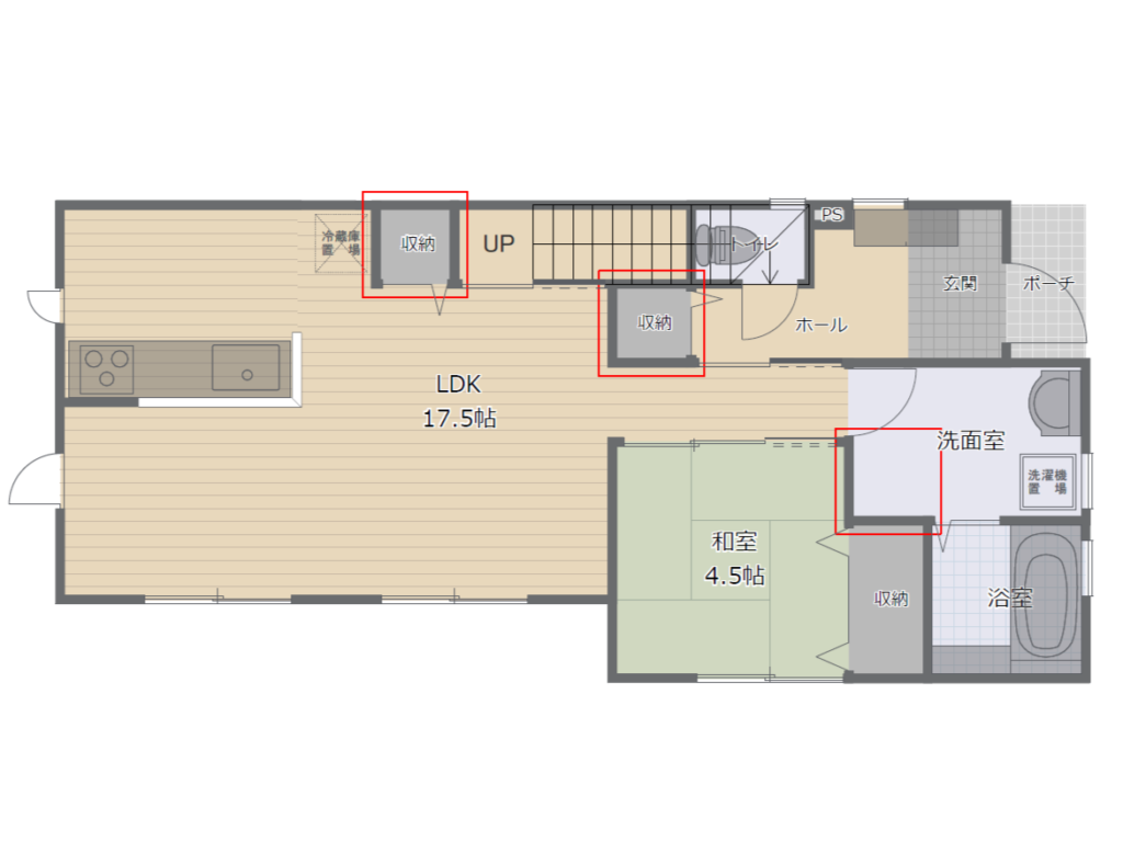
1階の各所に配置された収納

小ぶりであっても必要な場所に収納が配置されていると便利です。
階段横、左側にパントリーとしても使える収納、1階のホール奥にも収納があります。
洗面室はデッドスペースを活用して収納スペースをつくることができますね。
キッチンの背面スペースも理想的
冷蔵庫置き場のほかに2.8Mほどの背面スペースがあります。
キッチンにありがちな収納不足が心配にならないほどのスペースです。
背面は好みのテイストのキッチン家具を並べてもよいですし、統一性を持たたせたいならキッチンと同じメーカーのシステム収納を採用して、おしゃれなキッチンスペースをつくることができます。
自分好みに工夫のし甲斐がある背面スペースです。
2階ホールのデッドスペースはうまく活用したい

2階ホールの、階段吹抜左側のデッドスペースは収納場所として有効に使いたい場所です。
物干し用品やトイレで使う生活用品の収納場所として、市販品のチェストなどを配置するとよいでしょう。
バルコニーサッシ付近に、物干し金物を設置すれば、天候の悪い日でも室内干しができますし、取り込んだ洗濯物を一時的に掛けておくこともできます。
間取り実例で注意したいポイント

部屋の広さの表示に注意する
LDKは17.5帖の表示ですが、洗面室への通路部分が1.5帖あります。実質は16帖のLDKです。
居室の広さは、通路部分も含めて表示されます。
表示の広さと有効に使える広さがことなる場合があります。
間取り図を見るときには注意したいポイントです。
かなり窮屈な感じのする階段の登り口
LDKのなかから2階に上がっていくパターンですが、引き戸を設けることでインナー階段になっていません。
ところが、階段登り口の廊下スペースは0.5帖と狭いため、洗濯ものを2階に運ぶときなどには、とても狭く感じるでしょう。
道路側に面してしまった浴室・洗面室の窓
今回の土地の方角は東道路です。
浴室・洗面室が南東に配置されたことから、両方の窓は東(道路側)に向いてしまいました。
入浴中の明かりが道路から見えてしまうことがネックに感じます。
気になる方は、室内側にブラインドカーテン、外側に目隠しルーバーを設置するなどの対策を考えたい部分です。
1・2階ともに狭いタイプのトイレ
この間取りでは1・2階が両方とも畳0.75畳分のトイレです。
トイレの奥行は約1.2M、便座に腰かけると目の前に壁があります。
理想は畳1畳分のトイレですが、どちらかに広さを求めるのならば、お客様が使う可能性のある1階トイレがよいです。
【参考】ご家族4人で暮らす間取り実例の使い方


| ①キッチン背面スペース W2200タイプのカップボードとW600タイプの食器棚を配置 ②1階廊下収納のリビング側にW800タイプのシェルフを設置 ③洗面室のデッドスペースにW800タイプのシェルフを設置 ④2階ホールデッドスペースにW750タイプのシェルフを設置 ⑤主寝室 W1650タイプのダブルベッド、W750タイプのドレッサー、テレビ台としてW2000タイプのAVボードを設置 |
仙台市・宮城県エリアで建売住宅を購入するならネクストリンクにご相談ください

「家族に合う家を購入したいけど、間取りのイメージが掴めない・・・」
「気になる間取りがあるけれど、決めていいのか悩むなぁ・・・」
「間取りがもっと使い勝手が良くなるアイデアを知りたい!」
ネクストリンクでは、ご家族のご要望にふさわしい間取りのご提案や、購入検討中の間取りに悩みや不安のある方の診断、住宅購入を手軽にしたい方の物件探しなど、さまざまなサポートをご提供しています。
また建売住宅の土地のこと、ご予算のことなど、なんでもご相談ください。
株式会社ネクストリンクは、どこよりも土地・建物に強い会社です!間取りの元プランナーが物件選びをしっかりサポートいたします。


<こちらの記事も読まれています>
無料で相談できるので、お気軽に活用してみてくださいね。







