COLUMN
コラム
【建売住宅の間取り実例vol.11】北向きの玄関が可能にした広々LDKのプラン

今回の間取り実例は、土地の方角が東道路ではあるけれど、あえて北側に玄関を配置することで、広々とした空間をもつLDKをつくり上げたプランのご紹介です。
デッドスペースをなくして、部屋をレイアウトするアイデアをご覧ください。
建売住宅の購入では、できあがった間取りの中から物件を選ぶことになりますね。
ところが、間取りがご家族の理想に、どこまで近づいているかイメージできず、やっと見つかった物件なのに、購入に踏み出せないともったいないです。
このコラムでは、今までに販売された建売住宅の実例から、その間取りの良いところ、間取り図では気づきにくいポイント、使い勝手が良くなるアイデアなどを紹介します。
間取りの実例をたくさん見ることで、家族構成やこれから叶えたいライフスタイルに、ふさわしいと思える間取りがわかるようになります。
いろいろな建売住宅の実例を見て、ご家族に合う間取りをイメージしたい方や、間取りの使い勝手がよくなるアイデアを知りたい方は、ぜひご覧ください。
目次
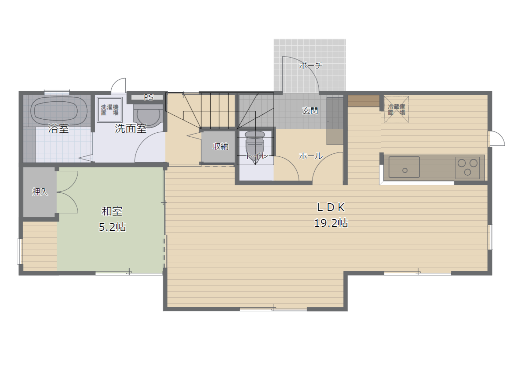
間取り実例の物件概要


| ・土地面積:140㎡台 ・建物面積:103.91㎡(1F:57.96㎡ 2F45.95㎡) ・間取りタイプ:4LDK ・収納率;約8.7% ※壁芯計算 収納面積:約9.1㎡ ・方角 / 土地形状:東道路/ 整形地 |
間取り実例の特徴


南向きの玄関にしないことで実現する使いやすいLDK
土地に対して道路が東側にありますが、あえて玄関を南向きにしないで、北側の真ん中ほどにレイアウトしています。
その分、南面と東面にスペースができるので、陽当たりがよく使い勝手もよいLDKの形になっています。
広々19.2帖のLDK
1階の廊下スペースを抑えたのでLDKを広くとることができています。
リビングだけで9帖ありますから、開放感のあるスペースです。
玄関からの出入りの位置も、それぞれの方向に行きやすい場所になっており、動線もスムーズです。
各所に設けられた収納がうれしい
個室はもちろんのこと、キッチンパントリーや1・2階廊下、玄関横の土間収納といろいろな場所に収納が配置されています。
廊下収納はデッドスペースを上手く活用しています。
必要な場所に、必要なものを収納することができるうれしい間取りですね。
ながい時間日差しが入るように計算された部屋の向き
東西にワイドな間取りで、陽当たりが良さそうですが、各個室の向きを見ても横長か、奥行を抑えています。
南面のサッシから、部屋全体に陽当たりが広がって、冬場でも暖かそうなイメージの沸くレイアウトになっています。
2階の動線もひとつの理想形
階段の登り口を中心にして、主寝室方向と子供部屋方向に動線が分かれています。
また、トイレと個室のドアがぶつかる部分はありますが、子供部屋の近くに配置されています。
この動線もひとつの理想形で、上手な仕上がりだと感じます。
間取り図で気にかけたいバルコニーへの動線
ワイドなバルコニーが主寝室の前に配置されています。
子供部屋を通らずにバルコニーに出られる動線は大事なポイントです。
年頃のお子さんによっては、自室への出入りを嫌がることがあるかもしれません。
2か所あるバルコニーのうち、広いサイズが主寝室前にあるのもよいレイアウトです。
やっぱりあるとうれしいキッチンのパントリー
建売住宅で、パントリーが採用されることはまだまだ少ないです。
間取り実例のパントリーは、収納扉がないことで横幅いっぱいを有効に使えます。
同じ収納BOXを並べて、統一感のあるおしゃれな「見せる」収納にしてはいかがでしょう。
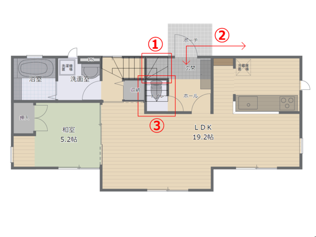
間取り実例で気になったポイント


間取り図の番号のついた赤枠の中について、それぞれ解説しています。
玄関横の収納の高さに注意-①
玄関横の収納は、階段下になりますので天井が低くなります。
7~9段目の位置になりますから、低い部分で1.4Mほど、高い部分で1.8Mほどと推測されます。
少し屈む姿勢で、物を出し入れするようになる収納と思われます。
玄関の配置はデメリットと感じることもある-②
間取り実例の特徴で、玄関の位置をあえて南面にしなかったことでのメリットに触れましたが、デメリットもあります。
それが、道路から玄関までの距離が長いことです。
北側の隣地境界線と建物の距離は1.6Mほどと思われます。
道路面から玄関が見えにくいですし、幅の狭い通路を通っての外からの出入りになります。
間取りとファサードのどちらを重視するか、意見の分かれるところでしょう。
窮屈に感じるかもしれない1階のトイレ-③
1階トイレの奥行は約1.2M、おまけに階段下にあるので天井が低く、段差もつきます。
2階トイレの奥行は約1.6Mです。
高さも奥行も2階トイレと比べると窮屈に感じるかもしれません。
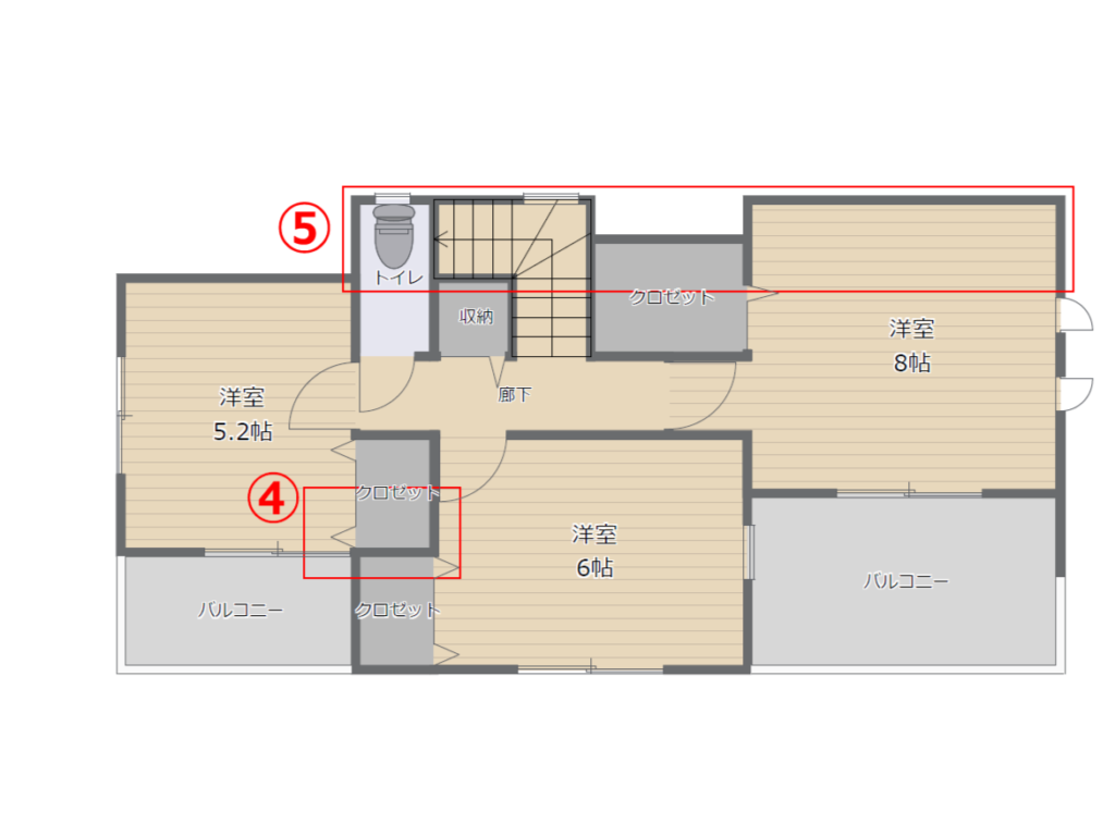
2階洋室5.2帖の収納扉とサッシの取り合い-④
バルコニーへ出入りする窓と、収納扉が近すぎです。
収納の扉を開けたとき、壁に取り付けるタイプのカーテンレールではぶつかってしまいます。
この場合は、窓枠の上部にカーテンレールもしくはブラインドをつける方法しかありません。
間取り図で見落としがちなポイントです。
不整形な建物の形は屋根にも影響する-⑤
1階は長方形に近い整形ですが、2階は凹凸が目立ちます。
不整形な2階は、屋根にも影響します。
屋根の形を整えるデザインにはいろいろな方法があるのですが、部屋の一部分の天井を下げて整える方法があります。
おそらく間取り実例では、屋根の形を整えるために北側部分の天井を低くしているように感じます。
お子さんの成長に合わせて使いかたを変えられる間取り

お子さんの成長に合わせて、長いこと使いやすい間取りです。
リビングと和室が続き間なので、お子さんから目を離せない年頃までは、和室を遊び場にして、いつでもリビングから見ていられます。
お子さんがご兄弟で小学生くらいになったら、5.2帖を寝室、6帖をプレイルームとしても使えます。
バルコニーがあるので布団などもサッと干せますね。
年頃になったら5.2帖・6帖を個室として使ってもらいます。
このように、お子さんの成長に合わせて可変性のある間取りは、物件選びの参考になりますよ。
仙台市・宮城県エリアで建売住宅を購入するならネクストリンクにご相談ください

「家族に合う家を購入したいけど、間取りのイメージが掴めない・・・」
「気になる間取りがあるけれど、決めていいのか悩むなぁ・・・」
「間取りが、もっと使いやすくなるアイデアを知りたい!」
ネクストリンクでは、ご家族のご要望にふさわしい間取りのご提案や、購入検討中の間取りに悩みや不安のある方の診断、住宅購入を手軽にしたい方の物件探しなど、さまざまなサポートをご提供しています。
また建売住宅の土地のこと、ご予算のことなど、なんでもご相談ください。
株式会社ネクストリンクは、どこよりも土地・建物に強い会社です!
「間取り」と「立地」に強い、建売住宅の元プランナーが物件選びをしっかりサポートいたします!


<こちらの記事も読まれています>
無料で相談できるので、お気軽に活用してみてくださいね。







